3톤 갠트리 크레인: 실내 및 실외 사용을 위한 비용 효율적인 리프팅 솔루션

2025년 11월 4일

3톤 갠트리 크레인은 경량 및 중하중 자재 취급에 필요한 리프팅 성능, 이동성, 그리고 경제성의 완벽한 조화를 제공합니다. 작업장, 창고 및 야외 현장에 적합하게 설계된 이 크레인은 최소한의 노력으로 무거운 하중을 안전하고 효율적으로 운반할 수 있는 방법을 제공합니다.

콤팩트한 구조로 좁은 공간에도 쉽게 설치할 수 있으며, 스팬, 높이, 이동성 등 다양한 옵션을 맞춤 설정하여 다양한 작업 환경에 맞춰 조정할 수 있습니다. 고정식 또는 이동식 갠트리 크레인을 선택하시든, 3톤 모델은 안정적인 성능, 긴 수명, 낮은 유지 보수 비용을 제공하여 소규모 공장 및 유지 보수 작업에 이상적인 선택입니다.

3톤 갠트리 크레인의 주요 유형

3톤 싱글 거더 갠트리 크레인.webp
3톤 싱글 거더 갠트리 크레인

높은 강도와 안정성을 갖춘 견고한 구조로, 대용량 하중 용량과 균일한 응력 분산을 제공하여 중·중량물 리프팅 작업에 안정적으로 사용할 수 있습니다.
3톤 트러스 갠트리 크레인
3톤 트러스 갠트리 크레인

가벼운 디자인, 높은 소재 효율성, 뛰어난 내풍성으로 인해 야외 활동에 이상적입니다.
3톤 세미 갠트리 크레인
3톤 세미 갠트리 크레인

한쪽 다리는 지면 레일을 따라 달리고 다른 쪽 다리는 벽면 레일을 따라 달리므로 작업 공간이 절약됩니다.
3톤 휴대용 갠트리 크레인
3톤 휴대용 갠트리 크레인

가볍고 휴대하기 편리한 디자인으로 유연한 작동이 가능합니다. 조립, 분해 및 운반이 간편합니다.

3톤 갠트리 크레인 가격

3톤 갠트리 크레인 가격은 크레인 종류, 스팬, 리프팅 높이, 작업 환경에 따라 달라집니다. 대부분의 갠트리 크레인은 특정 프로젝트 요구 사항에 따라 맞춤 설계되므로 고정 가격표는 없습니다.

저희는 고객의 정확한 리프팅 요구 사항에 맞춰 맞춤형 견적을 제공합니다. 이를 통해 비용, 성능, 내구성 간의 최적의 균형을 보장합니다.

문의하기 오늘 3톤 갠트리 크레인에 대한 맞춤형 견적을 받아보시고, 당사 엔지니어링 팀으로부터 전문적인 안내를 받으세요.

3톤 갠트리 크레인 적용

산업 폐수 처리 시설에 사용되는 3톤 싱글 거더 갠트리 크레인

이 3톤 갠트리 크레인은 산업 공장의 폐수 처리 구역에 설치되어 슬러지 및 침전물 제거 작업을 처리하도록 설계되었습니다. 이 크레인에는 스테인리스 스틸 그랩 버킷이 장착되어 있어 침전조 간 폐기물을 효율적으로 들어 올리고 운반할 수 있습니다.

이러한 설정은 폐수 처리 공정의 효율성과 안전성을 크게 향상시켜 수동 작업과 유지 관리 비용을 줄여줍니다.

산업 폐수 처리 시설에 사용되는 3톤 갠트리 크레인

금속 코일 가공 작업장의 3톤 세미 갠트리 크레인

이 3톤 세미 갠트리 크레인은 금속 가공 작업장에서 강철 코일을 취급하고 이송하는 데 사용됩니다. 크레인의 한쪽 다리는 지면 레일에, 다른 쪽 다리는 벽면 트랙에 지지되어 공장 내부 공간을 최대한 활용합니다.

전기 와이어 로프 호이스트가 장착되어 반복적인 취급 작업에 부드럽고 정밀한 리프팅 제어를 제공합니다. 이 솔루션은 제한된 생산 구역에서 자재 흐름의 효율성과 안전성을 향상시키는 데 도움이 됩니다.

금속 코일 가공 작업장의 3톤 세미 갠트리 크레인

차량 조립 작업장용 3톤 휴대용 갠트리 크레인

이 3톤 휴대용 갠트리 크레인은 자동차 제조 작업장에서 섀시 부품의 조립 및 설치 작업에 사용됩니다. 이 크레인은 경량 강철 구조로 제작되었으며, 정밀하고 안정적인 리프팅 작업을 위해 전기 체인 호이스트가 장착되어 있습니다.

캐스터가 장착된 이동식 설계 덕분에 크레인은 여러 작업 공간으로 쉽게 이동할 수 있어 좁은 공간에서도 유연하게 리프팅할 수 있습니다. 조립 효율을 크게 향상시키고 차량 부품 설치 시 수동 조작을 줄여줍니다.

차량 조립 작업장용 3톤 휴대용 갠트리 크레인

효율적인 피클링 및 금속 표면 처리를 위한 3톤 세미 갠트리 크레인

이 3톤 세미 갠트리 크레인은 금속 표면 처리 작업장에 설치되었으며, 특히 피클링 공정에서 작업물을 들어올리고 옮기는 데 사용됩니다.

크레인은 금속 부품을 한 단계에서 산세척 탱크 또는 후속 처리 스테이션으로 효율적이고 안전하게 인양하여 운영 효율성을 크게 향상시키고 수동 취급 위험을 최소화합니다. 견고하고 내부식성 구조는 산성 환경을 견딜 수 있도록 설계되어 장기간 안정적인 성능을 보장합니다.

효율적인 피클링 및 금속 표면 처리를 위한 3톤 세미 갠트리 크레인.webp

DAFANG 3톤 갠트리 크레인 케이스

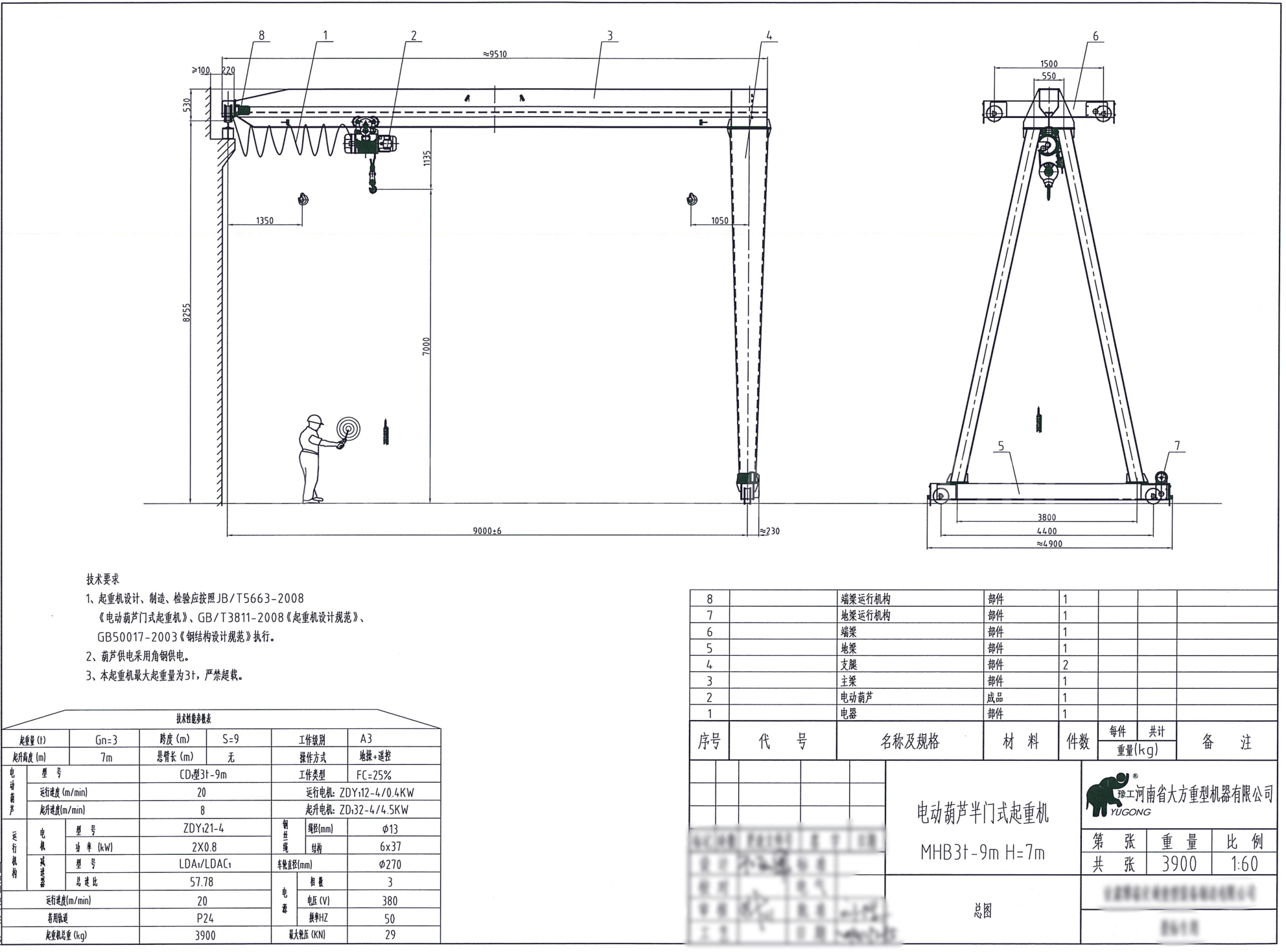
아래는 당사가 고객 중 한 명을 위해 설계하고 공급한 3톤 세미 갠트리 크레인을 소개하는 프로젝트 사례입니다.

3톤 세미 갠트리 크레인

3톤 세미 갠트리 크레인1 1
  • 리프팅 용량: 3톤
  • 스팬: 9m
  • 리프팅 높이: 7m
  • 노동계급: A3
  • 제어 모드: 펜던트 제어 + 원격 제어

3톤 세미 갠트리 크레인의 구조 설계

주광선

메인 빔은 호이스트형 크레인의 주요 하중 지지 부품이며, 전기 호이스트의 주행 궤도 역할도 합니다. 메인 빔은 Q345-B 강판을 냉간 굽힘 가공하여 형성된 U자형 채널, 경사 커버 플레이트, 보강재, 그리고 I형 빔으로 구성된 상자형 용접 구조물입니다.

  • 메인 빔은 설계 요구 사항에 따라 위쪽으로 캠버링되며, 캠버 값 F = (1/1000–1.4/1000) S, 여기서 S는 스팬입니다.
  • 최대 캠버는 중간 스팬의 S/10 범위 내에 위치합니다.
  • 전기 호이스트 트롤리는 I-빔의 플랜지를 따라 이동합니다.
  • 정격 하중과 호이스트 중량이 중간 스팬에 위치할 때, 빔 처짐은 수평선 아래로 떨어지지 않으므로 정상적인 작업 조건에서 영구적인 변형이 발생하지 않습니다.
  • 안전한 트롤리 운행을 보장하기 위해 빔의 양쪽 끝에 충격 흡수 장치가 설치되어 있습니다.

그라운드 빔

그라운드 빔(또는 하부 빔)은 메인 빔과 작업 하중을 모두 지지합니다. 메인 빔과 주행 장치를 연결하는 역할을 하며, 크레인의 핵심 하중 지지 구조 부품 중 하나입니다.

  • U자형 채널과 강판으로 제작되어 가벼운 무게, 높은 강성, 아름다운 외관, 우수한 용접성이 특징인 상자형 구조를 형성합니다.
  • 또한, 작동 안전성을 강화하기 위해 지면 빔의 양쪽 끝에 충격 흡수 장치가 장착되었습니다.

지지 다리

지지 다리는 Q345-B 강판을 이등변 또는 직각 사다리꼴 상자 모양의 기둥으로 용접하여 만들어졌습니다.

각 다리는 폭이 다른 플랜지(윗면 플랜지는 넓고 아랫면 플랜지는 좁음)를 특징으로 하여 강도, 강성, 안정성을 향상시킵니다.

구조적 연결

  • 메인 빔과 다리는 볼트 플랜지로 연결되어 바닥으로 갈수록 넓어지는 A자형 구조를 형성하여 전반적인 안정성을 크게 향상시킵니다.
  • 다리와 지면 빔도 강철판 플랜지를 통해 볼트로 고정되어 있어 조립, 운반, 보관이 쉬운 간단한 구조입니다.

신뢰할 수 있는 3톤 갠트리 크레인 및 전문 서비스 지원

3톤 갠트리 크레인은 작업장, 창고 및 생산 시설에서 중하중 자재를 취급하는 데 이상적인 리프팅 솔루션입니다. 고정형 또는 이동형, 실내 또는 실외 설치 등 어떤 용도든 고객의 특정 리프팅 요구 사항에 맞춰 크레인을 맞춤 제작하여 안전성, 정밀성, 그리고 장기적인 신뢰성을 보장합니다.

다팡 크레인은 단순한 크레인을 제공하는 것이 아니라, 완벽한 리프팅 솔루션을 제공합니다. 사전 상담 및 전문적인 설계부터 현장 설치 가이드 및 애프터서비스까지, 저희 팀은 고객이 효율적이고 안전한 자재 취급을 달성할 수 있도록 최선을 다합니다. 모든 고객에게 신속한 대응, 전문 기술 지식, 그리고 평생 서비스 지원을 제공하기 위해 최선을 다하고 있습니다.

신디
신디
왓츠앱: +86 191 3738 6654

저는 신디입니다. 크레인 산업에서 10년의 근무 경험을 쌓았고 풍부한 전문 지식을 축적했습니다. 저는 500명 이상의 고객을 위해 만족스러운 크레인을 선택했습니다. 크레인에 대한 필요 사항이나 질문이 있으면 언제든지 저에게 연락하세요. 저는 제 전문 지식과 실무 경험을 활용하여 문제를 해결하도록 도와드리겠습니다!

태그: 3톤 갠트리 크레인,다팡 크레인,갠트리 기중기

문의 보내기

위챗 위챗
업로드할 파일을 이 영역으로 클릭하거나 드래그합니다. 최대 5 파일을 업로드할 수 있습니다.