Product Introduction
Intelligent Carbon Block Process Crane is a purpose-built lifting solution designed for high-temperature calcination processes in industries such as metallurgy, chemical processing, and building materials.
It integrates multiple functions including material conveying, kiln charging and discharging, process monitoring, and emergency handling into a single intelligent system.
The crane adopts a high-temperature-resistant steel structural framework combined with a specialized ceramic fiber thermal insulation protection system, enabling continuous and stable operation in environments exceeding 800 °C.
Equipped with adaptive hydraulic gripping technology and an infrared thermal imaging positioning module, the Intelligent Carbon Block Process Crane ensures precise handling of calcined materials—such as carbon blocks and catalyst carriers—while dynamically calibrating material positioning inside the kiln for safe, accurate, and efficient operation.
Main Functions of the Intelligent Carbon Block Process Crane
- Charcoal Briquette Group Transfer
Equipped with a dual-clamping system, each group can grip up to 7 charcoal briquettes. The crane supports single-group or dual-group synchronized transfer, fully meeting the operational requirements of the grouping machine. - Green Block Loading
Precisely positions unbaked anode blocks (green blocks) and automatically loads them into designated pits of the calcination furnace using high-temperature-resistant gripping devices. - Baked Block Extraction from Furnace
Automatically extracts finished anode blocks (baked blocks) from the furnace and transfers them to conveyors or storage areas, eliminating manual handling in high-temperature environments. - Filling Material Handling
Filling function: Filling material is evenly distributed into furnace pits through discharge pipes to ensure a stable calcination environment.
Suction function: High-temperature filling materials are recovered using negative-pressure suction pipes, enabling material reuse and reducing operating costs. - Process Auxiliary Lifting
Integrated with a 10-ton service electric hoist for flue installation, furnace maintenance, and intermittent charcoal handling, significantly improving overall workshop maintenance efficiency. - Intelligent Process Integration
A PLC-based control system coordinates gripping, suction, discharge, and conveying systems, enabling fully automated operation throughout loading, unloading, and filling processes.
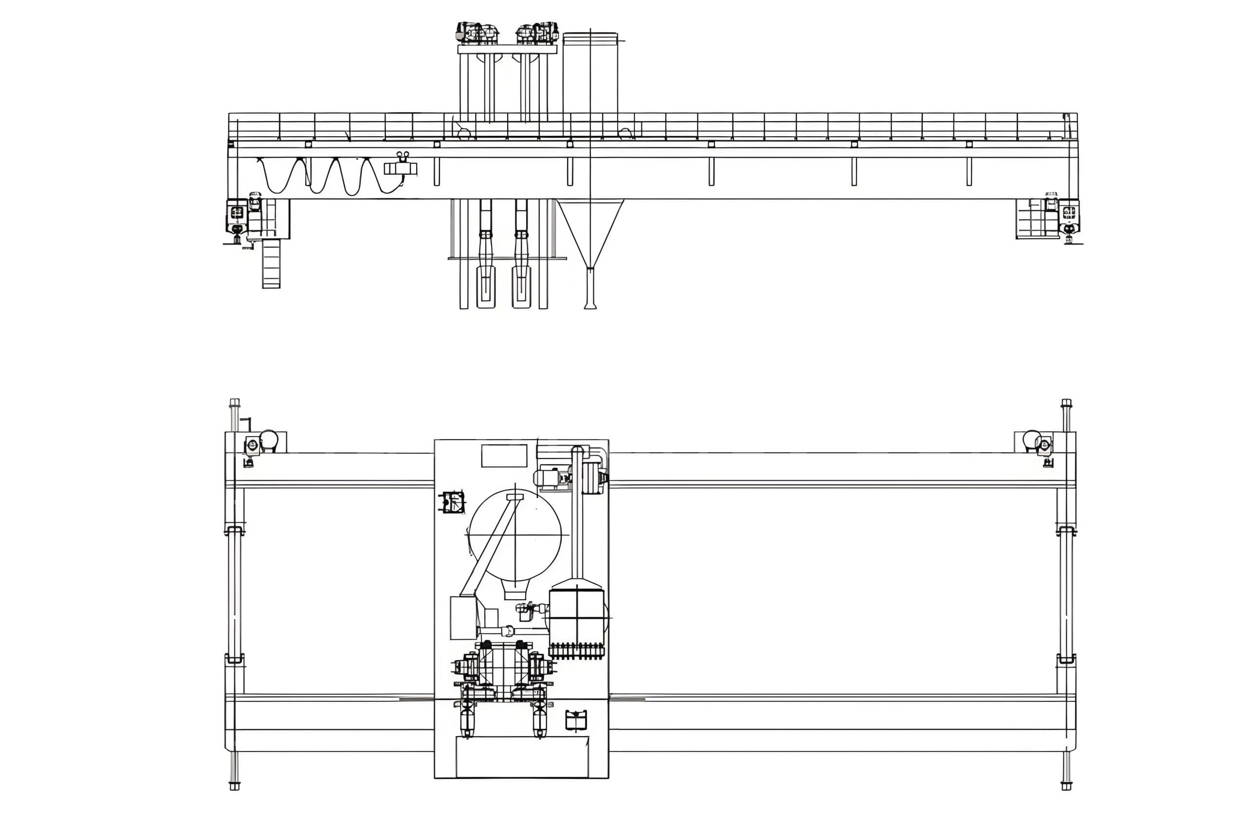
Structure of the Intelligent Carbon Block Process Crane
- Bridge (Girders)
Box-girder structure welded from high-strength, heat-resistant steel, designed to resist thermal deformation. Anti-skew devices are provided to ensure stable travelling. - Trolley
Dual-rail trolley design with an integrated dual-hoisting system. Driven by variable-frequency motors for smooth operation, achieving a positioning accuracy of ±2 mm. - Gripping System
Each gripper set can hold 7 carbon blocks, manufactured from high-temperature-resistant alloy materials. Features adaptive clamping force control and anti-displacement protection to ensure secure handling. - Crane Travelling Mechanism
Four-corner independent drive with variable-frequency speed control, equipped with a laser anti-skew correction system to prevent rail deviation. - Electrical Control System
Intelligent PLC + touchscreen (HMI) control system supporting remote monitoring, fault self-diagnosis, energy consumption optimization, and operational data logging. - Hoisting Mechanism
Dual-motor independent drive with adjustable lifting speeds of 2–13.5 m/min. Wire ropes are coated with high-temperature-resistant ceramic material to extend service life. - Safety Protection
Multiple limit protection devices, overload alarms, and an emergency stop system, fully compliant with A6–A8 heavy-duty operation requirements.
Operating Environment and Conditions of the Intelligent Carbon Block Process Crane
- Working Environment
The ambient air contains carbon dust, hydrocarbons, flue gas, and pitch fumes, requiring the equipment to operate reliably under heavy dust and corrosive conditions. - Ambient Temperature
The equipment is designed to operate normally at ambient temperatures of up to 55 °C. - Power Supply
AC 380 V ±10%, three-phase three-wire system, 50 Hz ±2%. - Duty Cycle / Working Regime
The crane operates on a three-shift system, with each shift lasting 8 hours of continuous operation.
Scheduled maintenance time shall be no less than 10 hours per week. - Filling Material Moisture Requirement
The moisture content of the filling material shall be controlled below 5%. Excessive moisture may cause damage to filter bags and adversely affect normal equipment operation.
Travelling System of the Intelligent Carbon Block Process Crane

- Structural Configuration
Double-girder overhead crane structure. The main girders are connected to the end carriages by high-strength bolts and locating pins, providing high overall rigidity and uniform load distribution. - End Carriage Design
Articulated end carriage configuration to compensate for rail installation deviations, ensuring uniform load distribution on all supporting wheels and facilitating manufacturing and installation. - Drive Arrangement
Double-sided, four-wheel drive (4/8 drive configuration), suitable for heavy loads and frequent start–stop operating conditions. - Transmission Unit
Helical-gear “three-in-one” integrated gearbox (motor, brake, and reducer combined), featuring a compact structure, smooth operation, low noise, and high reliability. - Travelling Control
Variable-frequency speed control, balancing high travelling speed with precise positioning to improve operational efficiency and safety. - Supporting Structure
Eight-wheel support design, reducing wheel loads and travelling resistance, extending the service life of wheels and rails, and lowering requirements for rail installation accuracy. - Safety and Maintenance
Polyurethane buffers and maintenance jacking points are provided at both ends, facilitating protection and wheel-set maintenance. - Auxiliary Lifting
Equipped with a rail-mounted electric hoist on the outer side of the main girder, meeting intermittent and auxiliary lifting requirements during calcination operations.
Hoisting System of the Intelligent Carbon Block Process Crane

- Core Load-Bearing and Lifting Platform
The hoisting system serves as the core functional unit of the crane, operating on rails mounted on top of the main girders. It integrates material suction and discharge, dust removal and cooling, gripper lifting, and control systems, enabling fully integrated multifunctional operations. - High-Strength Structural Design
Designed with a triple I-beam configuration combined with integral box-type end beams, the hoisting system provides high rigidity and load-bearing capacity, making it suitable for continuous heavy-duty operation under calcination conditions. - Stable and Efficient Drive System
Featuring four-wheel support and double-side drive (2/4 drive configuration), the system adopts variable-frequency speed control combined with three-in-one integrated gear reducers, ensuring smooth operation, low noise, and high reliability. - Balanced Speed and Precision
A dual-speed operating strategy allows high-speed travel for rapid positioning and low-speed operation for precise alignment, fully meeting the requirements of kiln charging, kiln discharge, and safe handling. - Comprehensive Safety Protection
Equipped with anti-derailment devices, polyurethane buffers, and maintenance jacking points, significantly enhancing operational safety and maintenance convenience. - Efficient Dust Removal and Cooling System
A combined arrangement of cyclone dust separation, air cooling units, and bag filters effectively reduces high-temperature airflow, protecting fans and dust collection systems. - Ergonomic Operator Control System
A low-mounted operator cabin with a wide field of view is provided, featuring an integrated control console, support for wireless remote control, and air conditioning for improved operator comfort. - Specialized Calcination Gripping System
The gripping system works in coordination with the hoisting mechanism to realize integrated carbon block handling, including gripping, kiln charging, kiln discharge, and transfer operations.
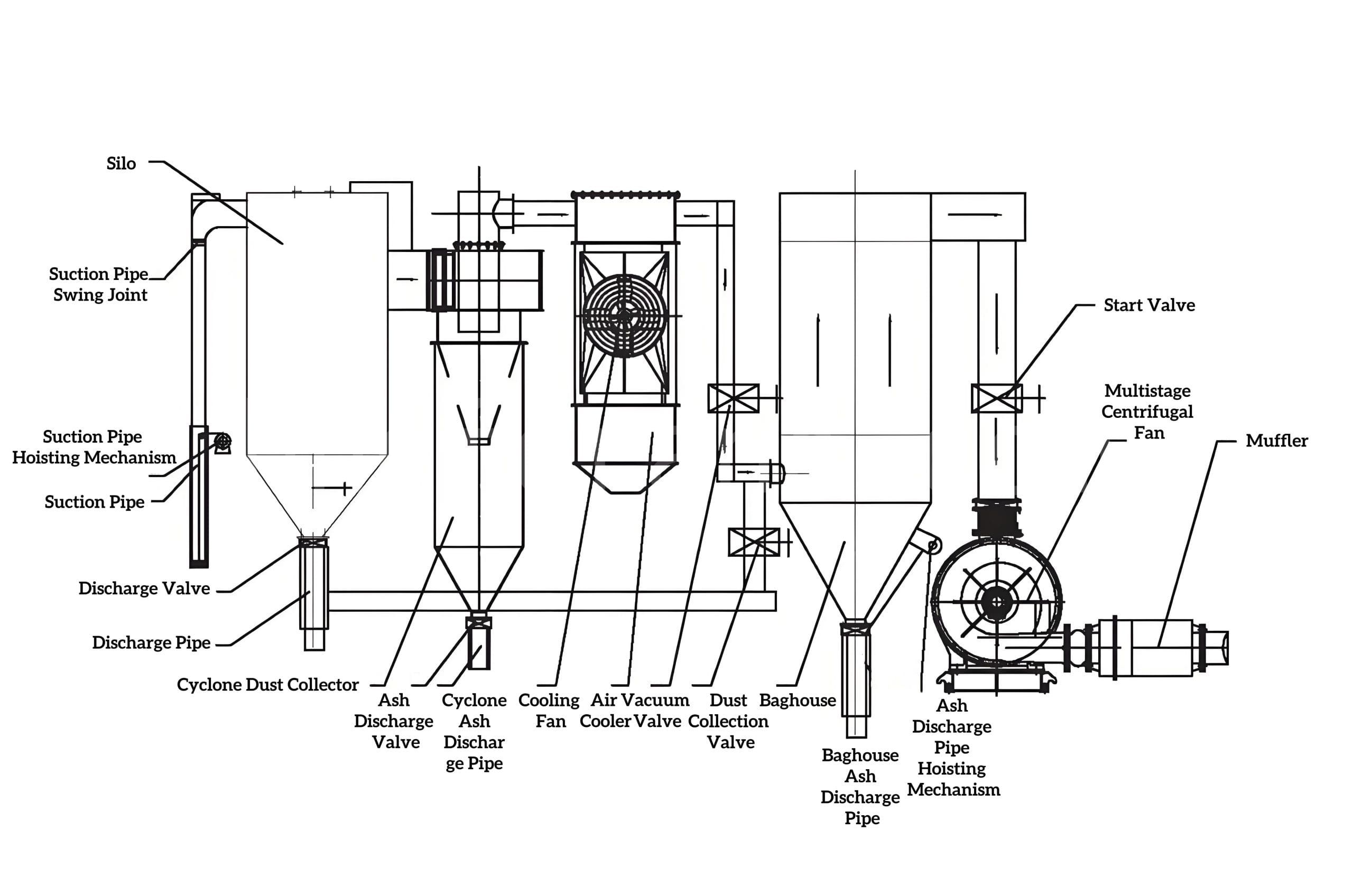
Suction and Discharge System of the Intelligent Carbon Block Process Crane

- Integrated Multifunction Operation
The system integrates filling material suction, filling material discharge, and dust recovery into a single unit, fully meeting the requirements of continuous calcination processes. - High Operating Efficiency
Suction capacity of 30–60 m³/h and filling capacity of 40–70 m³/h, achieving an optimal balance between operational efficiency and system stability. - Strong Adaptability to High-Temperature Materials
Capable of handling materials at temperatures of up to 600 °C for short durations and ≤350 °C under normal operation, with customized high-temperature suction solutions available upon request. - Anti-Clogging, High-Efficiency Suction Design
The suction nozzle features an anti-clogging structure, ensuring stable vacuum adsorption within material piles while minimizing the risk of blockage. - High-Efficiency Dust Removal and Cooling System
A combined system of cyclone dust separation, air cooler, and pulse-jet bag filter effectively reduces airflow temperature and enhances dust collection efficiency. - High-Temperature-Resistant Key Components
Includes a wear-resistant lined cyclone separator, high-temperature filter bags (rated at 180 °C, short-term up to 260 °C), and high-temperature multi-stage centrifugal fans, ensuring long-term reliable operation. - Intelligent Safety Protection
PLC interlocking control provides comprehensive protection against overload, overheating, and excessive vacuum. Anti-collision protection and hoisting overload protection fully cover the suction and discharge piping system. - Environmental Compliance and Low-Noise Operation
Dust emissions comply with national environmental standards. Silencers are installed at the fan inlet and outlet, maintaining system noise levels at ≤80 dB.
Gripping System of the Intelligent Carbon Block Process Crane



- High-Efficiency Integrated Loading and Unloading
Designed for carbon block gripping, kiln charging, kiln discharge, and transfer operations. Each cycle can handle 2 × 6–8 carbon blocks, significantly improving operational efficiency. - Replacement for Conventional Conveying Equipment
The crane enables round-trip transportation between furnace chambers and grouping / de-grouping stations, eliminating the need for additional conveying systems and reducing workshop equipment configuration and capital investment. - Mechanical Self-Clamping Mechanism
Automatic clamping is achieved through the self-weight of the gripper and the load, without the need for additional power sources. The design is simple, robust, and highly reliable. - High-Safety Clamping Design
The clamping force is designed with a safety factor ≥ 1.5, ensuring stable gripping of carbon blocks and preventing slippage during operation. - Intelligent Interlock Protection
PLC-based interlocking ensures that the gripper remains self-locked until the carbon blocks are placed on a fixed surface, preventing accidents caused by misoperation. - Anti-Collision and Anti-Sway Protection
Equipped with gripper swing limit devices to effectively protect the gripper and surrounding equipment in the event of accidental collision. - Overload and Jamming Protection
Electronic sensors provide real-time overload monitoring, preventing damage to the hoisting mechanism caused by block adhesion or jamming. - Safe and Flexible Operation
Multiple interlocks are incorporated into the gripping and release processes, ensuring reliable actions and safe operation while meeting the requirements of continuous calcination-duty cycles.






